Stegreife
raumsequenz
Kreiert werden sollte ein Raum anhand einer Bildabfolge. Grundlage war ein simpel produziertes, analog hergestelltes Entwurfsmodell mit den Elementen Treppe und Innenraum. Ziel war es, eine qualitätsvolle Bewegung durch beide Räume zu inszenieren. Gesucht wird das Zusammenspiel aus räumlicher Komplexität und Klarheit.











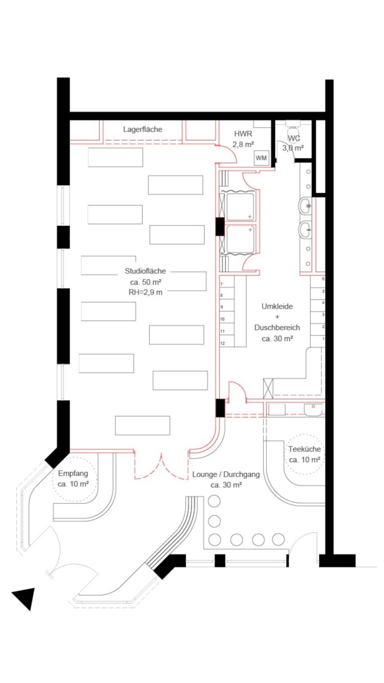
pilates studio – Umsetzung 12/25
Für ein beinahe leeren Grundriss einer ehemaligen Modeboutique sollte ein Konzept für ein Pilatesstudio entworfen werden. Auf begrenzter Fläche entstanden Studiofläche, Umkleide- und Sanitärräume sowie ein Eingangsbereich inkl. Café, Empfang und Präsentation von Merchandise. Grundlage des Entwurfs ist ein möglichst offenes Raumkonzept auf engem Raum, wobei die drei verschiedenen Nutzungen klar definiert sind.
Fertigstellung der Umsetzung des Konzepts: 12/25







introvertiert
Das „Home Office“ hat während der Corona-Pandemie einige Vor- aber auch Nachteile erkennbar werden lassen. Nun sollte für den Fall einer innerstädtischen, von außen isolierten Wohnsituation eine attraktive Lösung gefunden werden.
Vorgegeben waren eine quadratische Grundfläche von 100 m² sowie die Limitierung auf eine Öffnung nach Außen.







treppenhaus
Modellbau: Dreh- und Angelpunkt des Entwurfs ist das Thema „Treppe“. Ziel des Projektes ist es, die Erschließung über Stufen zu gewährleisten, wobei diese den Entwurf des Gebäudes definieren. Aus den verschiedenen treppenartigen Formen ergeben sich die verschiedenen Ebenen.
Je nach Nutzungsanforderungen entstehen aus den jeweiligen „Treppenstufen“ erweiterte quadratische Flächen, die sich in das kubische Gesamtkonzept eingliedern. Die Individualität der Ebenen, sowie die sich daraus ergebende Gebäudehülle schaffen das Gesamtbild einer verzweigenden Treppe.
Das Gebäude rankt sich an der dezenten Steigung eines nördlich gelegenen Berges hinauf und bietet aufgrund der großzügigen Glasfronten atemberaubende Aussichtsmöglichkeiten auf den anschließenden Bergsee.
architekturkritik
Innerhalb des Kurses „Architektur und Kommunikation“ wurde unter Leitung des Gastprofessors und Journalisten Gerhard Matzig eine Architekturkritik verfasst. Unter verschiedenen Gesichtspunkten setzte man sich mit dem Peek & Cloppenburg-Gebäude auseinander, welches 2005 von den Architekten Ingenhoven und Partner fertiggestellt wurde.